- Woonoppervlakte
- Circa 200 m²
- Perceeloppervlakte
- Circa 7378 m²
- Bouwjaar
- Gebouwd in 1977
- Aantal kamers
- 6 kamers (3 slaapkamers)
Droomt u van landelijk wonen in luxe en comfort? Deze onder architectuur gebouwde Cereshoeve, een rietgedekte WOONBOERDERIJ met bijgebouwen ligt op een royaal perceel van 7.378 m² en biedt alles wat u zoekt. Volledig gerenoveerd in 2007, combineert deze unieke woning charme, moderniteit en hoogwaardige afwerking tot in de puntjes. Duurzaam en, met een slaap- en badkamer op de begane grond, levensloopbestendig.
Dit unieke object biedt een combinatie van luxe, privacy en natuurlijke schoonheid zoals u die zelden aantreft. Laat u verrassen door de sfeer, ruimte en mogelijkheden. Maak snel een afspraak voor een bezichtiging en ervaar het zelf!
Bouwjaar: 1977
Kaveloppervlakte: 7378 m²
Woonoppervlakte: 200 m²
Inhoud: 725 m³
Slaapkamers: 3
Bij binnenkomst voel je direct de harmonie tussen ruimte en stijl. De entree met garderobe en meterkast leidt naar een sfeervolle woonkeuken met gashaard, luxe inbouwapparatuur zoals een professioneel gasfornuis, wijnklimaatkast en cooker. Met een fijne grote tafel kun je hier gezellig zitten. Via de lange hal met toegang tot een bijkeuken met witgoedaansluiting, toilet met fonteintje en trapopgang, kom je in de tuingerichte woonkamer met houtkachel en schuifpui. Een heerlijke plek om te ontspannen. Voldoende lichtinval en de ruimte maken de kamer licht en luchtig, terwijl de deels afgescheiden werkplek zorgt voor praktisch comfort.
Vanuit de woonkamer kom je in de master bedroom met inbouwkasten en een deur (met hor) naar buiten. Aangrenzend vind je een luxe badkamer met inloopdouche, toilet, dubbele wastafel, vloerverwarming en mechanische ventilatie. De gehele begane grond is afgewerkt met sfeervolle Franse kloosterplavuizen, met uitzondering van de keuken, waar warme houten vloerdelen zijn toegepast. Verder vind je diverse oude elementen als stalraampjes, gebinten en balkenplafond.
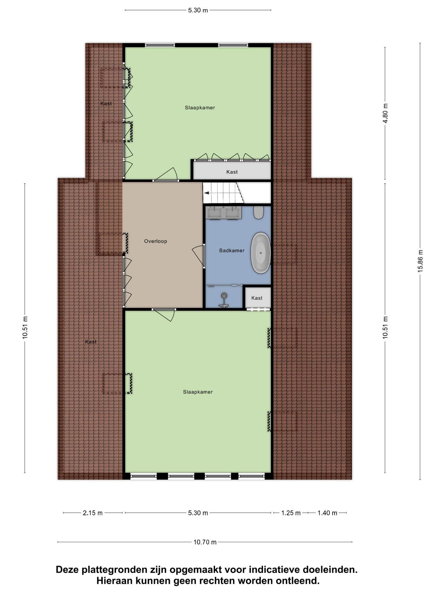
Verdieping:
De trapopgang zit achter een deur in de hal. Je komt hiermee op een royale overloop met vaste kasten en een dakraam.De verdieping biedt ruimte aan twee royale slaapkamers met vaste kasten en een tweede luxe badkamer voorzien van een ligbad, doucheruimte, toilet en fraai wastafelmeubel. Alle Velux dakramen op de verdieping zijn voorzien van screens en horren, voor optimaal comfort. Slaapkamers en overloop zijn voorzien van vloerbedekking.
Tuin:
De fijne, zeer royale tuin rondom biedt veel privacy en is fraai aangelegd met terrassen, grasvelden, een vijver en voldoende parkeerruimte. Het recent verworven aangrenzende perceel, omringd door een boswal, biedt extra mogelijkheden voor een weiland, bijgebouw of uitbreiding van de tuin (in 2017 is hier een vergunning voor verleend).
De bijgebouwen, waaronder een garage met bergzolder, een kapschuur, houtopslagen en een stenen bakhuisje zijn volledig in stijl met het hoofdgebouw.
* Energielabel A
* Hybride warmtepomp (bj. 2020)
* CV-ketel en infrarood verwarming (2022)
* 25 Zonnepanelen (uit 2019)
* Rieten dak vernieuwd in 2016
* Buitenschilder recent uitgevoerd in 2024
* Eigen bron met pomp en slangen
* Biodiverse tuin en kruidentuin
* Boomgaard met appels, peren, pruimen, keren en noten (oude rassen)
Omgeving:
Ruinen is een mooi en gezellig 'brinkdorp' in de gemeente De Wolden, het heeft een goed voorzieningenniveau, zoals basisonderwijs, kinderopvang, bibliotheek, zwembad, sporthal, een gevarieerd winkelbestand, gezellige horeca, sportverenigingen en natuurlijk rondom een schitterende omgeving met prachtige natuurgebieden waaronder het Dwingelderveld. De grotere plaatsen zoals Hoogeveen (12km), Meppel (14km) bieden ook voortgezet onderwijs en uitstekende uitgaansmogelijkheden waaronder schouwburgen, bioscopen en vele restaurants. Ruinen is via de A28, N375 en A32 goed te bereiken.
In en om Ruinen ervaar je de puurheid van de natuur en niet alleen qua flora en fauna! De nachten zijn hier donker en stil, waardoor je de sterrenhemel kunt bewonderen in al zijn pracht om vervolgens weer helemaal op te laden dankzij een diepe nachtrust. Het Nationaal Park Dwingelderveld staat bekend als donkerste plek van Nederland. Een uniek gebied met nauwelijks lichtvervuiling en een van de weinige plekjes in ons land waar je géén snelweg hoort.
Nieuwsgierig? Bel ons!
Overdracht
- Vraagprijs
- € 1.050.000 k.k.
- Status
- Verkocht
- Aanvaarding
- In overleg
Bouw
- Object type
- Woonboerderij, vrijstaande woning
- Soort bouw
- Bestaande bouw
- Bouwjaar
- 1977
- Soort dak
- Schilddak bedekt met riet
Oppervlakte en inhoud
- Woonoppervlakte
- 200 m²
- Perceeloppervlakte
- 7378 m²
- Inhoud
- 725 m³
- Overige inpandige ruimte
- 2 m²
- Externe bergruimte
- 60 m²
Indeling
- Aantal kamers
- 6 kamers (3 slaapkamers)
- Aantal badkamers
- 2 badkamers
- Badkamervoorzieningen
- Toilet, douche, dubbele wastafel, vloerverwarming ligbad, toilet, inloopdouche
- Aantal woonlagen
- 2 woonlagen
- Voorzieningen
- Rookkanaal, zonnepanelen
Energie
- Energielabel
- A
- Energielabel registratie
- 27-11-2024
- Isolatie
- Dakisolatie, muurisolatie, vloerisolatie, gedeeltelijk dubbel glas, hr glas
- Verwarming
- Cv-ketel, hete lucht verwarming, open haard, warmtepomp, gashaard
- Warm water
- Cv-ketel
- Cv ketel
- Hybride gas gestookt uit 2022 (eigendom)
Buitenruimte
- Ligging
- Aan rustige weg, vrij uitzicht, open ligging, buiten bebouwde kom, in bosrijke omgeving, landelijk gelegen
- Tuin
- Tuin rondom, zonneterras
- ligging tuin
- En bereikbaar via achterom
Bergruimte
- Schuur / berging
- Vrijstaande houten berging
- Voorzieningen
- Voorzien van elektra
Garage
- Soort garage
- Vrijstaand steen
- Capaciteit
- 2 auto's
- Voorzieningen
- Elektra
Parkeergelegenheid
- Soort parkeergelegenheid
- Op eigen terrein
Energieverbruik in Ruinen
Energielabel deze woning
Energielabel A
Publicatie energielabel: 27-11-2024
Stroomverbruik per jaar
(Gemiddelde vrijstaande woning in Ruinen)
Gasverbruik per jaar
(Gemiddelde vrijstaande woning in Ruinen)
* Cijfers zijn afkomstig van het CBS en bedoeld als indicatie en kunnen verschillen voor deze woning
Indicatie hypotheeklasten
Eigen inleg:
Spaargeld / overwaarde
Rente:
Laagste 10-jaars rente
Laagste 10-jaars rente
2,76% - Centraal Beheer Groen... - NHG
3,01% - Centraal Beheer Groen... - 80%
Laagste 20-jaars rente
3,19% - Centraal Beheer Groen... - NHG
3,31% - Centraal Beheer Groen... - 80%
Laagste 30-jaars rente
3,34% - Centraal Beheer Groen... - NHG
3,47% - Centraal Beheer Groen... - 80%
Hypotheek:
Bruto maandlasten: € 0 p/m
Netto maandlasten: € 0 p/m
Hoe berekenen we dit?
Het rentepercentage is gebaseerd op de laagste 10-jaars vaste rente voor één hypotheekdeel. De vermelde rente (3.01% zonder NHG) is gecontroleerd op 28-05-2025. Deze berekening is gebaseerd op een annuïteitenhypotheek die volledig wordt afgelost, waarbij de maandlasten gedurende de gehele looptijd gelijk blijven. De werkelijke rente en netto maandlasten kunnen variëren, afhankelijk van uw persoonlijke situatie en de hypotheekverstrekker. Raadpleeg een financieel adviseur voor een nauwkeurige berekening en advies. Aan deze berekening kunnen geen rechten worden ontleend; het dient enkel als indicatie.
Documentatie
Kadastrale kaart
Leefomgeving
Plattegronden PDF
BAG uittreksel
WOZ waarderapport
Koopovereenkomst
Brochure
Bezoek onze website
Bezichtiging
Bod uitbrengen
Waardebepaling
Zoekopdracht
Alles downloaden
Zonnegrenzen bekijken
Op de kaart
Inwoners in Ruinen
Cijfers voor postcodegebied 7963
- Totaal aantal inwoners
- 3670 inwoners
- Mannen
- 50%
- Vrouwen
- 50%
Inwoners in Ruinen
Cijfers voor postcodegebied 7963
- tot 15 jaar
- 12%
- 15 tot 25 jaar
- 11%
- 25 tot 35 jaar
- 16%
- 45 tot 65 jaar
- 31%
- 65 en ouder
- 31%
Huishoudens in Ruinen
Cijfers voor postcodegebied 7963
- Eenpersoons zonder kinderen
- 31%
- Meerpersoons zonder kinderen
- 39%
- Huishoudens zonder kinderen
- 70%
Huishoudens in Ruinen
Cijfers voor postcodegebied 7963
- Huishoudens met één kind
- 6%
- Huishoudens met meerdere kinderen
- 25%
- Huishoudens met kinderen
- 31%
Woningen in Ruinen
Cijfers voor postcodegebied 7963
- Woningen voor 1945
- 19%
- Woningen tussen 1945 en 1965
- 13%
- Woningen tussen 1965 en 1975
- 21%
- Woningen tussen 1975 en 1985
- 13%
- Woningen tussen 1985 en 1995
- 11%
Woningen in Ruinen
Cijfers voor postcodegebied 7963
- Woningen tussen 1995 en 2005
- 13%
- Woningen tussen 2005 en 2015
- 6%
- Woningen na 2015
- 3%
- Huurwoningen
- 30%
- Koopwoningen
- 70%
Overige in Ruinen
Cijfers voor postcodegebied 7963
- Gemiddelde WOZ waarde
- € 285.000,-
- Personen onder de 65 met uitkering
- Niet beschikbaar
Overige in Ruinen
Cijfers voor postcodegebied 7963
- Adressen per km²
- 293
- Stedelijkheid (schaal 1 op 5)
- 20%
Korte feiten over Ruinen
Ruinen (Nedersaksisch: Rune) is een brinkdorp in de Nederlandse provincie Drenthe, gemeente De Wolden, met 3.695 inwoners. Tot 1 januari 1998 was Ruinen een zelfstandige gemeente.
Zandbergen Makelaardij
Indien u vragen heeft of u wilt een bezichtiging inplannen, dan kunt u gebruik maken van het formulier hiernaast. Er zal daarna op korte termijn contact met u worden opgenomen.
Egginklaan 2 - 4
7971 CA, Havelte
0521 - 340 043 info@zandbergenmakelaardij.nl www.zandbergenmakelaardij.nlContact opnemen
Over ons
Een huis kopen of verkopen is geen alledaagse gebeurtenis. Het vraagt om goede voorbereiding en begeleiding. Bij Zandbergen Makelaardij sta je er niet alleen voor. Ons team – bestaande uit Gerben (NVM Register Makelaar), Rik (NVM Makelaar), Annemieke (binnendienst) en Martine (Assistent Makelaar) – staat voor je klaar om je met vakkennis en enthousiasme te helpen.
Wij zijn lokaal geworteld in de regio Meppel, Westerveld en omgeving. Je komt ons tegen bij sportverenigingen, op het voetbalveld of tijdens een wandeling door de mooie natuurgebieden in Drenthe en Overijssel. Ook op maatschappelijk vlak zijn we actief: we ondersteunen lokale sportclubs en werken graag samen met ondernemers uit de regio.
Zandbergen Makelaardij is opgericht in 2004. Sindsdien hebben we talloze mensen geholpen bij het vinden of verkopen van hun woning. Onze kennis blijft actueel dankzij regelmatige bijscholing. Bovendien zijn we lid van de NVM, waarbij Gerben Zandbergen een leidende rol vervult als voorzitter van de afdeling Drenthe.
Ben je op zoek naar een makelaar die de regio kent, betrokken is én staat voor kwaliteit? We maken graag kennis met je!
Nieuwste reviews
-
Witteltermade 6
Als ik weer een makelaar nodig zou hebben, bel ik ze weer! Correcte en plezieige samenwerking, rustig en deskundig. Wist mijn huis in goede...
-
Witteltermade 6
Als ik weer een makelaar nodig zou hebben, bel ik ze weer! Correcte en plezieige samenwerking, rustig en deskundig. Wist mijn huis in goede...
-
Witteltermade 6
Als ik weer een makelaar nodig zou hebben, bel ik ze weer! Correcte en plezieige samenwerking, rustig en deskundig. Wist mijn huis in goede...